 
                                                                                                        Znížená cena - 4i RD vo vynikajúcom stave v obľúbenej lokalite
- Predaj
- Rodinný dom
- 100 m2
- Topoľnica
Shark real Vám ponúka exkluzívne na predaj rozostavaný 4 izbový rodinný dom - bungalov v obci Mankovce. K dispozícii je aj projekt domu a stavebné povolenie.
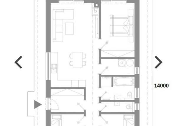
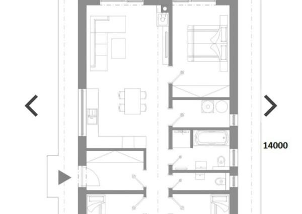
Bungalov pozostáva zo vstupnej chodby, kuchyne s obývačkou a prechodom na terasu, ďalej spálňa, dve detské izby, technická miestnosť, WC a kúpeľňa. 
Na pozemku sa nachádzajú všetky siete. A to elektrická prípojka s malým rozvádzačom, plynová prípojka, obecný vodovod a tiež kanalizácia. Pozemok je o výmere 1108 m2 a dá sa využiť aj ako budúca investícia a rozdelenie na ďalší stavebný pozemok. 
Zastavaná plocha tohto bungalovu je 122 m2, úžitková plocha 90 m2. Vymurované sú len nosné priečky, takže čiastočná variabilita je možná. Materiál je tehla 300 mm, Krytina Tondach Samba 11, Klasický krov. 
Nehnuteľnosť sa nachádza v tichej časti obce, neďaleko lesa a pohoria Tribeč, vo výbornej lokalite na relax, ktorá je známa viacerými významnými miestami ako Národný žrebčín Topoľčianky s dostihovou dráhou, vinárne Château Topoľčianky, Kaštieľ a zámok Topoľčianky s veľkým parkom, Hipologické múzeum Topoľčianky, taktiež je neďaleko situovaný Pstruhový raj, Zubria zvernica, Hrad Gýmeš, Arborétum Mlyňany a mnoho ďalších.
V obci je základná občianska vybavenosť. Vo vzdialenosti len pár minút autom je mesto Zlaté Moravce, do 10 minút je napojenie na diaľnicu smer BA/BB alebo do 20 minút vzdialené krajské mesto Nitra.
Prečo povedať ÁNO pre túto nehnuteľnosť : 
+ Veľký priestranný dom
+ Možnosť dokončenia domu podľa vlastných predstáv
+ Rýchla dostupnosť do mesta a na diaľnicu
+ Slnečný pozemok
+ Nerušené bývanie 
+ Zaujímavá lokalita na relax
Táto nehnuteľnosť sa dá financovať aj prostredníctvom HÚ s výhodným financovaním a to priamo v našej realitnej kancelárii.
Ceny uvedené v ponuke sú konečné a bez akýchkoľvek ďalších poplatkov.
V cene nehnuteľnosti je zahrnuté:
- kompletný právny servis spojený s predajom nehnuteľnosti
- vyhotovenie rezervačnej, kúpnej zmluvy a návrhu na vklad do katastra nehnuteľností
- uhradenie správneho poplatku za návrh na vklad kúpnej zmluvy do katastra nehnuteľností
- uhradenie poplatku za osvedčenie podpisov na kúpnej zmluve
- poradenstvo / vybavenie financovania / pomoc pri znaleckom posudku
Bližšie informácie, viac fotiek, prípadne termín obhliadky Vám rada poskytnem na tel. č. 0944 089 449.
SHARK REAL - VÁŠ SILNÝ a SPOĽAHLIVÝ PARTNER V OBLASTI REALÍT!
| Interné ID: | 1.84467441E+19 | 
|---|---|
| Obec: | Mankovce | 
| Okres: | Zlaté Moravce | 
| Kraj: | Nitriansky kraj | 
| Druh: | Domy | 
| Typ: | Predaj | 
| Typ domu: | Rodinný dom |