Používame cookies

Súbory cookie a ďalšie technológie sledovania používame na zlepšenie vášho zážitku z prehliadania našich webových stránok, na to, aby sme vám zobrazovali prispôsobený obsah a cielené reklamy, na analýzu návštevnosti našich webových stránok a na pochopenie toho, odkiaľ naši návštevníci prichádzajú. Viac info

Čiastočne zrekonštruovaný dom vo výbornej lokalite s garážou

Popis nehnuteľnosti

Zdieľať na Facebooku

SHARK REAL vám ponúka exkluzívne na predaj rodinný dom situovaný v tichej a vyhľadávanej lokalite Piešťan – na Dubovej ulici. Dom sa nachádza na rovinatom pozemku s celkovou rozlohou o výmere 440 m2 , ktorá poskytuje dostatok priestoru pre oddych aj praktické využitie. Nehnuteľnosť je murovaná a pozostáva z prednej a zadnej časti, pričom zadná časť je riešená ako prístavba. Vďaka svojej dispozícii je tento dom ideálny pre mnohopočetnú rodinu, viacgeneračné bývanie alebo kombináciu bývania a prenájmu.

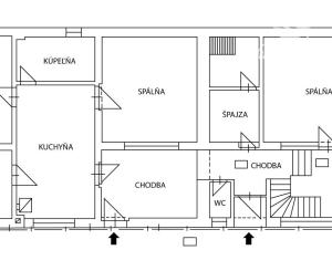
Dispozícia domu:

PREDNÁ ČASŤ DOMU (3-izby + kuchyňa, kúpeľňa a WC):
- Priestranná vstupná chodba.
- Samostatná izba – ideálna ako hosťovská izba, pracovňa alebo spálňa.
- Priestranná obývacia izba s veľkým oknom orientovaným do ulice, ponúkajúca dostatok denného svetla.
- Zrekonštruovaná kúpeľňa vybavená moderným sprchovým kútom.
- Samostatná toaleta s oknom na odvetranie.
- Kuchyňa s výhľadom do dvora.
- Ďalšia izba s oknom do chodby – vhodná ako spálňa alebo detská izba.

Z CHODBY JE VSTUP:
- na povalu, ktorá ponúka ďalší úložný priestor alebo možnosť budúcej nadstavby,
- do pivnice, vhodnej na uskladnenie potravín, náradia alebo vína, nachádza sa tu aj plynový kotol,
- do zadnej – prístavbovej časti domu.

ZADNÁ ČASŤ DOMU (2-izby + kuchyňa, kúpeľňa):
- Kuchyňa s dostatkom priestoru na stolovanie.
- Dve samostatné izby, jedna s prirodzeným osvetlením a druhá s oknom do chodby – vhodné ako spálne, detské izby alebo pracovňa.
- Kúpeľňa vybavená vaňou a toaletou – praktické riešenie pre samostatné fungovanie tejto časti.

POZEMOK A EXTERIÉR:
- Samostatne stojaca garáž vhodná na parkovanie alebo ako dielňa.
- Menšia záhradka s možnosťou pestovania ovocia a zeleniny alebo vybudovania altánku.
- Kurín, ktorý môže byť zachovaný pre chov hydiny alebo upravený na iné účely.

TECHNICKÝ STAV:
- Dom je v dobrom zachovalom stave, čiastočne zrekonštruovaný.
- Strecha na prednej časti domu je kompletne vymenená, plastové okná v celom dome, dom je čiastočne zateplený.
- V dome je zavedená elektrina, voda, plyn a odpad je napojený na verejnú kanalizáciu.

LOKALITA:
Dubová ulica sa nachádza v pokojnej časti Piešťan s výbornou dostupnosťou do centra mesta, na diaľnicu a v blízkosti občianskej vybavenosti – obchody, škola, škôlka, zdravotné stredisko či zastávka MHD.

Tento dom predstavuje výnimočnú príležitosť pre tých, ktorí hľadajú priestranné bývanie s potenciálom na modernizáciu alebo investičnú nehnuteľnosť s možnosťou rozdelenia na dve bytové jednotky.

V cene nehnuteľnosti je zahrnuté:
- kompletný právny servis spojený s predajom nehnuteľnosti
- vyhotovenie rezervačnej, kúpnej zmluvy a návrhu na vklad do katastra nehnuteľností.
- uhradenie správneho poplatku za návrh na vklad kúpnej zmluvy do katastra nehnuteľností
- uhradenie poplatku za osvedčenie podpisov na kúpnej zmluve
- poradenstvo / vybavenie financovania / pomoc pri znaleckom posudku

Bližšie informácie, prípadne termín obhliadky Vám rád poskytnem na tel. č. 0909 139 866 alebo prostredníctvom emailu sharkreal@sharkreal.sk

SHARK REAL - VÁŠ SILNÝ A SPOĽAHLIVÝ PARTNER V OBLASTI REALÍT!

Vlastnosti

Status:
aktívne
Vlastníctvo:
osobné
Stav:
čiastočne prerobený
Úžitková plocha:
160 m2
Plocha pozemku:
440 m2
Zastavaná plocha:
200 m2
Počet podlaží:
1
Balkón:
nie
El. napätie:
230/400V
Kanalizácia:
áno
Zateplený objekt:
nie
Terasa:
nie

Hypotekárna kalkulačka

232 000 €
Interné ID: 1.844674407371ssdE+1
Ulica: Dubová
Obec: Piešťany
Okres: Piešťany
Kraj: Trnavský kraj
Druh: Domy
Typ: Predaj
Typ domu: Rodinný dom

Patrik Masaryk, RSc.

  • Slovensky
  • English
  • Italiano

Radi Vám poradíme